Schlüsselfertiges Einfamilienhaus (Neubau) mit Südausrichtung in absolut ruhiger Lage in Peiting
Kaufpreis: 749.000,00 €
Ort:
Peiting
Objekt ID:
7203
Objekttyp:
Einfamilienhaus
Kaufpreis:
749.000,00 €
Stellplatz:
Freiplatz
Provision:
-auf den Grundstückskaufpreis 3,57% inkl. MwSt.
-auf den Preis des Werkvertrags: 3,57% inkl. MwSt.
-auf den Preis des Werkvertrags: 3,57% inkl. MwSt.
Wohnfläche:
121,00 m²
Grundstücksfläche:
525,00 m²
Anzahl Zimmer:
4.00
Baujahr:
2027
Heizungsart:
Fußbodenheizung
Zustand:
Erstbezug
Adresse
Peiting
Bitte kontaktieren Sie uns für eine genaue Adressangabe.
Bitte kontaktieren Sie uns für eine genaue Adressangabe.
Ihr Ansprechpartner:
Thomas Pfeiffer
Tel: 00491739267881Mobil: 00491739267881
Email: T.Pfeiffer@Immobilien-Ried.de
Objektanfrage
Objektbeschreibung
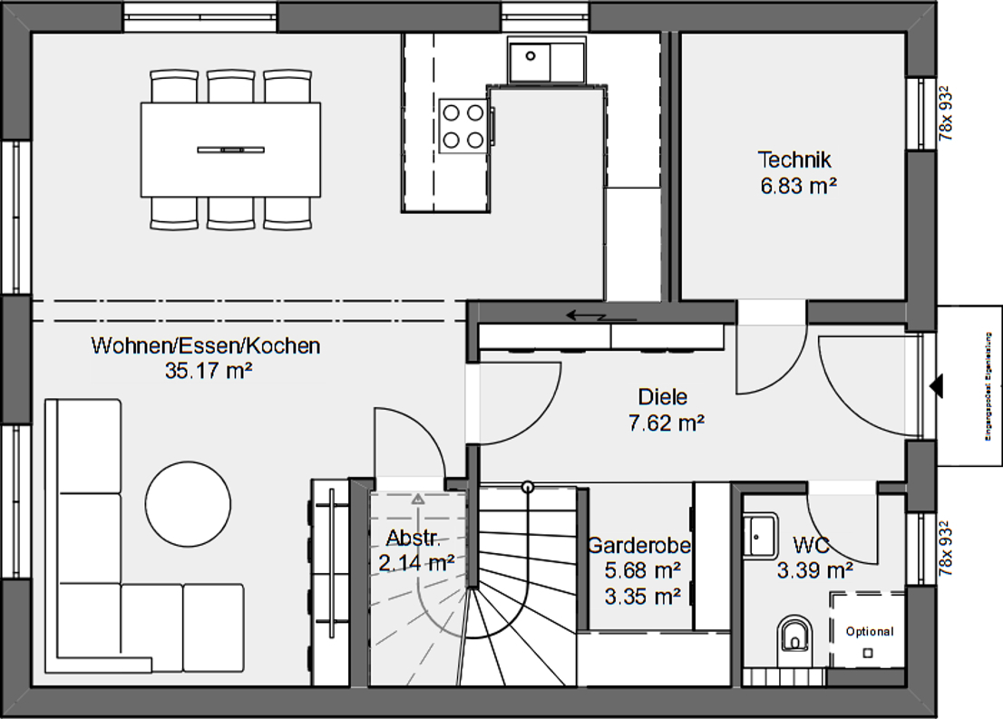
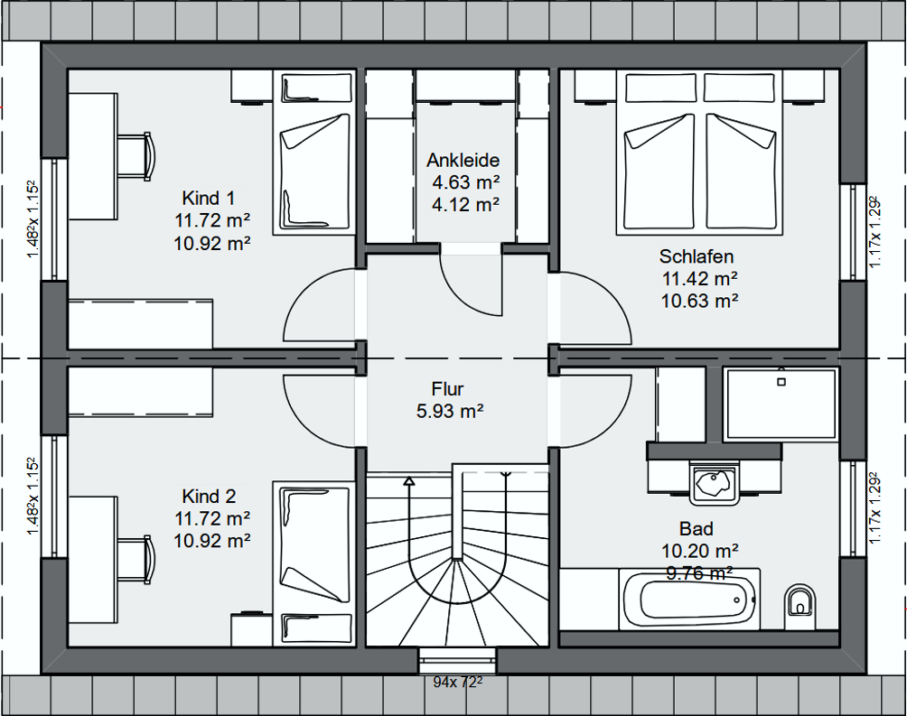
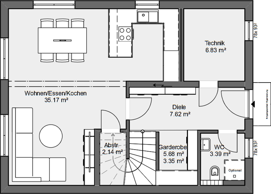
Dieses moderne Einfamilienhaus (EG+OG) entsteht in Peiting in absolut ruhiger Toplage in Süd- Ausrichtung. Das Grundstück hat eine Fläche von 525 m. Gebaut wird nach neuesten energetischen Standards. Das Haus wird in Fertigbauweise von einem renommierten deutschen Unternehmen hergestellt. Es wird schlüsselfertig übergeben, so dass keine Eigenleistungen notwendig sind. Die Wohnfläche (Nettogrundfläche nach DIN 277) beträgt ca. 121 m² (Terrassenflächen sind nicht eingerechnet). Das Haus wurde mit 4 Zimmern geplant, kann aber ganz nach Ihrem persönlichen Bedarf angepasst werden. Zu dem Haus wurden eine Garage und ein Stellplatz geplant, welche preislich noch dazukommen oder in Eigenleistung errichtet werden. Natürlich kann auch ein Keller optional gegen Aufpreis erstellt werden (Sie finden einen Beispielgrundriss in diesem Exposé). Alle Fenster sind Dreh-Kipp-Fenster inkl. Aluminium-Rollladen mit elektrischem Antrieb. Beheizt wird das Haus mit einer modernen Luft-Wärmepumpe. Die farbliche Gestaltung der Fassade wird vom Käufer festgelegt. Die angestrebte Bauzeit beträgt 6 Monate ab Baubeginn. Weitere Informationen finden Sie in der ausführlichen Bauleistungsbeschreibung. Der Zahlungsplan sieht vor, dass für das Haus ab Oberkante 10% nach genehmigten Bauantrag bezahlt werden und die restlichen 90% erst nach der Übergabe des fertigen Hauses!
Bei diesem Angebot erhalten Sie eine Photovoltaikanlage kostenlos dazu (befristete Sonderaktion). Sollten Sie keine Photovoltaikanlage wollen, so erhalten Sie vom Bauträger Ausstattungen/Einrichtungen i.H.v. 10.000€ kostenfrei dazu.
Zum Verkauf stehen 2 Doppelhaushälften:
- DHH1: 121 m² Wfl., 525 m² Grund, 749.000€
- DHH2: 121 m² Wfl., 467 m² Grund, 727.000€
Bei diesem Angebot erhalten Sie eine Photovoltaikanlage kostenlos dazu (befristete Sonderaktion). Sollten Sie keine Photovoltaikanlage wollen, so erhalten Sie vom Bauträger Ausstattungen/Einrichtungen i.H.v. 10.000€ kostenfrei dazu.
Zum Verkauf stehen 2 Doppelhaushälften:
- DHH1: 121 m² Wfl., 525 m² Grund, 749.000€
- DHH2: 121 m² Wfl., 467 m² Grund, 727.000€
Lage
Peiting, Markt im oberbayerischen Landkreis Weilheim-Schongau mit knapp 12.000 Einwohnern, bietet eine große Vielfalt an Kunst und Kultur. Bis heute hat Peiting seinen dörflichen Charakter erhalten. Freizeit und Sport wird in Peiting großgeschrieben. Bergsteigen, Naturseen, Wellenfreibad, Tennis, Minigolf, Reiten und Klettern sind nur ein kleiner Auszug der Möglichkeiten. Für Wintersportfreunde ist Peiting mit seiner Eishalle (bekannt durch den erfolgreichen EHC), ausgebauten Langlaufloipen und Schlittenpisten der ideale Standort. Was den Genuss betrifft bietet Peiting eine Vielzahl an gemütlichen Gaststätten, gepflegte Restaurants sowie Tages Cafés. Für den täglichen Bedarf stehen Lebensmittelgeschäfte, Kaufhaus, Weltladen, Bekleidungsfachgeschäft, Drogeriemarkt, Sportgeschäft, diverse Bäckereien, Kiosk am Bahnhof, Feinkostgeschäft, Telekommunikationsladen und eine Käse-Alm zur Verfügung. Der Bahnhof ist nur ca. 10 Minuten zu Fuß entfernt. Grundschule, Realschule und Kindergarten sind vor Ort. Für weiterführende Schulen stehen Schongau (5 km Entfernung) oder auch Weilheim (23 km entfernt) zur Verfügung. Peiting liegt zentral: nach Augsburg und München sind es ca. 70 Km., nach Füssen ca. 35 Km., nach Kempten ca. 60 Km., nach Garmisch-Partenkirchen ca. 50 Km. Auch Österreich, Südtirol und Italien sind sehr schnell zu erreichen. Hier finden Sie eine natürliche, sehr schöne Landschaft mit viel Sonnenschein in einer ruhigen Umgebung. Sie sind inmitten der Natur. In der Umgebung kann man wunderbare Radtouren fahren. Viele Spaziergänge laden zum Entspannen ein.
Ausstattung
Dieses Einfamilienhaus verfügt über insgesamt 2 Etagen. Im Erdgeschoß befinden sich der große Wohn- Essbereich, die Küche, eine Diele, der Technikraum, eine Garderobe und ein WC. Im Obergeschoß sind 3 Schlafzimmer, eine Ankleide und ein großes Bad. Die genaue Aufteilung ist noch genau bestimm- und variierbar. Das Haus ist hochwertig und mit allen wichtigen Details ausgestattet. Zu diesen gehören z.B.:
Fenster
- Dreh-Kipp-Fenster inkl. Aluminium-Rollladen mit elektrischem Antrieb
Haustüren
- Haustürelement mit Türblatt und rechteckigem Lichtausschnitt
Treppen
- Holztreppe 1/2 gewendelt inkl. Geländer mit Edelstahlstaketen
Sanitärinstallation
- BWT-Sanitärverteilerstation für Kalt- und Warmwasser (inkl. Feinfilter, Waschmaschinenanschluss, Außenwasseranschluss)
- Selbstlernende Brauchwasserzirkulationspumpe (BW-SL 155) mit Photovoltaikanschlussmöglichkeit
Elektroinstallation
- Komplette Elektroinstallation inkl. Bosch Smart-Home-System
- Vorbereitung für spätere Photovoltaikanlage (4 PV-Kabel + Erdungskabel)
Heizung
- Frischluftheizung mit WärmeGewinnTechnik (WGT) und Luft-Luft-Wärmepumpe
- Trinkwasserwärmepumpe Aerotop DHW 250 (250 Liter, SG-ready)
Fußbodenaufbau
- Fußbodenaufbau in EG und DG
- Laminatboden in Wohnbereichen
- Bodenfliesen und Wandfliesen in Nassräumen und Küche
Sanitärobjekte
- WC-Wand-Tiefspüler
- Waschtisch mit Zubehör
- Duschboard mit Echtglas-Duschkabine und Brausebatterie
- Einbauwanne 170/75 cm
Malerarbeiten
- Wände und Decken im Erdgeschoss und im Obergeschoss mit Rauhfasertapete tapeziert und gestrichen
Kellerausführung
- Isolierte, wasserundurchlässige Bodenplatte mit Perimeterdämmung
- Keller optional gegen Aufpreis (Beispielgrundriss in diesem Exposé)
Baunebenkosten:
Baunebenkosten in Höhe von ca. 44.000€ sind bereits im Kaufpreis inbegriffen!
Dazu gehören z.B. Hausanschlüsse, Baustrom, Bauwasser, Allgemeine Gebühren (Herstellungsbeiträge, Genehmigungen), Vermessungskosten, Teilungskosten, Eventualkosten (Gemeinsame Zuwegung, Bordsteinabsenkung) etc..
Risikominimiertes Zahlungskonzept für maximale Sicherheit:
10% für das Haus ab Oberkannte nach genehmigten Bauantrag, 90% nach Fertigstellung des Hauses!
Fenster
- Dreh-Kipp-Fenster inkl. Aluminium-Rollladen mit elektrischem Antrieb
Haustüren
- Haustürelement mit Türblatt und rechteckigem Lichtausschnitt
Treppen
- Holztreppe 1/2 gewendelt inkl. Geländer mit Edelstahlstaketen
Sanitärinstallation
- BWT-Sanitärverteilerstation für Kalt- und Warmwasser (inkl. Feinfilter, Waschmaschinenanschluss, Außenwasseranschluss)
- Selbstlernende Brauchwasserzirkulationspumpe (BW-SL 155) mit Photovoltaikanschlussmöglichkeit
Elektroinstallation
- Komplette Elektroinstallation inkl. Bosch Smart-Home-System
- Vorbereitung für spätere Photovoltaikanlage (4 PV-Kabel + Erdungskabel)
Heizung
- Frischluftheizung mit WärmeGewinnTechnik (WGT) und Luft-Luft-Wärmepumpe
- Trinkwasserwärmepumpe Aerotop DHW 250 (250 Liter, SG-ready)
Fußbodenaufbau
- Fußbodenaufbau in EG und DG
- Laminatboden in Wohnbereichen
- Bodenfliesen und Wandfliesen in Nassräumen und Küche
Sanitärobjekte
- WC-Wand-Tiefspüler
- Waschtisch mit Zubehör
- Duschboard mit Echtglas-Duschkabine und Brausebatterie
- Einbauwanne 170/75 cm
Malerarbeiten
- Wände und Decken im Erdgeschoss und im Obergeschoss mit Rauhfasertapete tapeziert und gestrichen
Kellerausführung
- Isolierte, wasserundurchlässige Bodenplatte mit Perimeterdämmung
- Keller optional gegen Aufpreis (Beispielgrundriss in diesem Exposé)
Baunebenkosten:
Baunebenkosten in Höhe von ca. 44.000€ sind bereits im Kaufpreis inbegriffen!
Dazu gehören z.B. Hausanschlüsse, Baustrom, Bauwasser, Allgemeine Gebühren (Herstellungsbeiträge, Genehmigungen), Vermessungskosten, Teilungskosten, Eventualkosten (Gemeinsame Zuwegung, Bordsteinabsenkung) etc..
Risikominimiertes Zahlungskonzept für maximale Sicherheit:
10% für das Haus ab Oberkannte nach genehmigten Bauantrag, 90% nach Fertigstellung des Hauses!
Freiplatz, Fußbodenheizung, Garage, NUTZUNGSART-WOHNEN, zentralheizung
Sonstige Angaben
Energieausweis nach Fertigstellung
Abbildungen/Ansichten zeigen gegebenenfalls optionale Sonderausstattungen!
Weitere Informationen zu diesem und zu weiteren Objekten finden Sie unter www.Immobilien-Ried.de
Alle in diesem Exposé enthaltenen Daten und Informationen beruhen auf Angaben Dritter, daher wird keine Haftung für die Richtigkeit und/oder Vollständigkeit von Immobilien-Ried übernommen. Alle Angaben sind ohne Gewähr.
Abbildungen/Ansichten zeigen gegebenenfalls optionale Sonderausstattungen!
Weitere Informationen zu diesem und zu weiteren Objekten finden Sie unter www.Immobilien-Ried.de
Alle in diesem Exposé enthaltenen Daten und Informationen beruhen auf Angaben Dritter, daher wird keine Haftung für die Richtigkeit und/oder Vollständigkeit von Immobilien-Ried übernommen. Alle Angaben sind ohne Gewähr.
Ihr Ansprechpartner:
Thomas Pfeiffer (Immobilien Ried) Tel: 00491739267881Mobil: 00491739267881Email: T.Pfeiffer@Immobilien-Ried.de
Thomas Pfeiffer (Immobilien Ried) Tel: 00491739267881Mobil: 00491739267881Email: T.Pfeiffer@Immobilien-Ried.de
Leopoldstr. 244
80807 München
